Реферат: Кормление и содержание кавказских овчарок в частном питомнике "Надежная охрана"
Реферат: Кормление и содержание кавказских овчарок в частном питомнике "Надежная охрана"
ВГСХА
Кафедра кормления животных и технология кормов
РЕФЕРАТ на тему:
Кормление и содержание кавказских овчарок в частном питомнике
"Надежная охрана"
Киров 2009
Оглавление
Введение
1. Содержание собак
1.1 Общие правила содержания собак
1.2 Обслуживание собак и мест их содержания
1.3 Правила личной гигиены при работе с собаками
2. Кормление собак
Собаководство в настоящее время
приобретает важное значение в различных отраслях народного хозяйства. Потребности
в развитии сельскохозяйственного, служебного, декоративного, спортивного и
специального собаководства возрастают, так как эти животные - незаменимые
помощники человека.
Трудно перечислить все
разнообразные формы использования собак, а также их роль в обогащении духовного
мира людей. Они участвуют в охране народнохозяйственных и других объектов, в
том числе государственной границы. Сыскное собаководство оказывает неоценимую
помощь работникам системы МВД. Значительна помощь собаки в сельском хозяйстве,
в жизни народностей Крайнего Севера и экспедициях. При отгонном пастбищном
содержании в республиках Средней Азии и Кавказа чабанские собаки охраняют отары
овец от нападения хищников, облегчают труд пастухов в период перегонов и
пастьбы животных. Собаки выполняют задания геологов, водолазов, связистов,
инвалидов, санитаров, спасателей и так далее. Наряду с использованием собак в
различных отраслях народного хозяйства они имеют большое значение в других
направлениях - цирковом, декоративном и любительском, а также научных
исследованиях.
Многие научные открытия связаны
с участием собак. Например, экспериментальные исследования академика И.П. Павлова
в области высшей нервной деятельности дали возможность полученные данные
положить в основу объяснения психической и физиологической деятельности
человека и. животных. На собаках предварительно изучалось и проверяется
действие многих лекарственных веществ.
В настоящее время в мире большое
разнообразие породных групп собак. Работа по совершенствованию и закреплению
породных качеств, а также по созданию новых пород продолжается и поставлена на
научную основу. Данной работой занимаются как государственные, так и частные
питомники, клубы собаководства и другие учреждения.
В питомнике применяется
групповое содержание собак. Место для строительства питомника сухое и удалённое
от свинарников, конюшен и автомобильных дорог. Наиболее оптимальная удалённость
от этих сооружений - 500 метров.
Территория питомника оборудована
освещением и ограждена сплошным забором высотой 2,5 метра, с целью
предотвращения проникновения на территорию других животных и посторонних лиц,
которые могут оказаться нежелательными раздражителями для собак, а также
носителями инфекционных заболеваний. Во избежание подкопов ограждение усиленно
с двух сторон на 20см. и на глубину 30см. битым кирпичом.
Питомник имеет такие здания и
сооружения как:
Односторонний павильон - это
строение, которое состоит из вольеров, кабин и пристроенных к ним к передней
стенке выгулов. И предназначено для непосредственного размещения собак. Он
служит для защиты собак от вредных метеорологических воздействий. Павильоны
построены на сплошном фундаменте, выполненном из железобетонных блоков. Над
фундаментом возвышается цоколь, высота которого 30см. Кабины просторные и
светлые, не отапливаемые (ширина - 2м., длина - 2м., высота передней стенки - 2,5м.,
задней - 2м). Стены кабины частично выполнены из обыкновенного кирпича,
частично из сетки-рабицы, что помогает в летнее время предотвратить
перегревание собак. Пол выполнен из бетона с уклоном к задней стенке, в которой
расположена тумба для слива грязной воды во время уборки. Сверху пол покрыт
разборными полами. Дверь (высотой 2м) из сетки-рабицы, ширина её - 0,7м. Потолок
сделан из плотных досок, покрыт сверху толем, а между потолком и крышей засыпан
шлак с опилками. Зимой внутри кабины ставят будку.
Площадка для чистки собак
расположена перед первым павильоном. Она представляет собой помост, сделанный
из крепких досок. На одной линии на площадке установлены собаковязи, которые
служат местом временного размещения собак на цепях во время чистки вольера. Собаковязь
- деревянный столбик (диаметр примерно 20см), в верхней торцовой части которого
закреплено кольцо для цепи. Расстояние между собаковязями - 5 метров.
Гардеробная с ящиками для
инвентаря по уходу за собаками и шкафчиками для фартуков и комбинезонов. В
отдельном углу в ящиках хранятся дезинфицирующие средства. Гардеробная - отдельное
здание, расположенное поблизости от павильонов.
Родильное помещение расположено
в пристройке к дому, исполненной из обычного кирпича. Там имеется
благоустроенный для собаки угол, хирургический стол, ящик для хирургических
инструментов. Щенная сука переводится в родильное помещение за 2-3 дня до ожидаемого
щенения.
Отдельное помещение для течных
сук изготовлено из бревен.
Выгулы расположены на той
половине питомника, где стоит дом и как бы являются продолжением его стен. Ограждения
выгулов и их двери сделаны из сетки-рабицы. "Пол" выгулов выложен
плиткой.
Гараж для служебной машины
расположен на территории питомника.
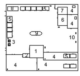
Генеральный план предприятия
показан на рисунке 1.

Рисунок 1 - Генеральный план
предприятия "Надежная охрана":
1 - дом;
2 - родильное помещение;
3 - собаковязи;
4 - выгулы;
5 - павильоны;
6 - помещение для течных сук;
7 - баня;
8 - гараж;
9 - бассейн;
10 - озеленение территории.
Содержание собак заключается в их
обслуживании, кормлении, поддержании чистоты и порядка в вольерах и
вспомогательных помещениях.
На передней стенке вольера
закреплена табличка, на которой указана кличка собаки, порода, пол, возраст,
номер родословного документа (таблица 1).
Места, отведённые для размещения
собак, находятся под охраной и на ограждении вывешены таблички с
предупреждающей надписью: "Собаки. Посторонним вход воспрещён".
На каждую собаку выдаётся
специальное снаряжение и инвентарь. На снаряжении наносят краской кличку собаки
и её личный номер. Перед применением снаряжения проверяется его целостность и
прочность: по мере надобности, проводится ремонт, очистка, просушка и смазка
кожаных элементов вазелином.
В вольерах собак содержат без
привязи, ошейников и намордников. При временном содержании на собаковязи
необходимо следить, чтобы цепь не запутывалась и не перегрызалась собакой.
При общем выгуливании собак с
поводков не спускают. Пустующих сук и выздоравливающих собак выгуливают
отдельной группой и в последнюю очередь.
Обслуживание собак проводят
согласно установленному распорядку дня, ежедневно в утреннее и вечернее время.
Таблица 1 - Поголовье в
питомнике кавказских овчарок на 2008 год.
| № |
Кличка |
Пол |
Год рождения |
Окрас |
| 1 |
Замарай |
кобель |
2002 |
Зонарно-серый |
| 2 |
НО Бася |
сука |
2004 |
Зонарно-серый |
| 3 |
НО Божена |
сука |
2004 |
Зонарно-серый |
| 4 |
НО Багира |
сука |
2004 |
Зонарно-серый |
| 5 |
ЗВ Донна |
сука |
2004 |
Зонарно-серый |
| 6 |
НО Ангелина |
сука |
2004 |
Зонарно-серый |
| 7 |
НО Глюкоза |
сука |
2005 |
Серо-белый |
| 8 |
НО Дож |
кобель |
2005 |
Палевый |
| 9 |
НО Ё Вика |
сука |
2005 |
Зонарно-серый |
| 10 |
НО Ёжанна |
сука |
2005 |
Зонарно-серый |
| 11 |
НО Ёж |
кобель |
2005 |
Зонарно-серый |
| 12 |
Жархан из СС |
кобель |
2005 |
Серо-белый |
| 13 |
Зевс |
кобель |
2006 |
Серо-палевый |
| 14 |
НО Изида |
сука |
2006 |
Зонарно-серый |
| 15 |
Найс |
кобель |
2006 |
Зонарно-серый |
| 16 |
Азалия из ЗК |
сука |
2006 |
Зонарно-серый |
| 17 |
Люс Делис Чаровница |
сука |
2006 |
Зонарно-серый |
| 18 |
Цкаро Нике |
сука |
2006 |
Тигровый |
| 19 |
НО Мерседес |
сука |
2007 |
Бурый |
| 20 |
Утёс из СС |
кобель |
2003 |
Серо-белый |
| 21 |
Есения из СС |
сука |
2003 |
Зонарно-серый |
| 22 |
Эшрет* |
сука |
2003 |
Палевый |
Примечание: обозначение "НО"
означает приставку питомника Надежная Охрана, то есть собака выведена в
питомнике; "ЗВ" - Злато Вятки, то есть собака завезена из другого
питомника; "СС" - Столица Сибири; "ЗК"-Золотое Кольцо; * - средне-азиатская
овчарка.
Кормление собак производят 2
раза в сутки, в часы, установленные распорядком дня, но не позже 1,5-2 часов до
начала и не ранее 1,5-2 часов после окончания тренировки. Подкармливание собак
в неположенное время продуктами пайка, а также продуктами, не входящими в
состав рациона, не допускается. Водопой в летний период производят в
установленное время из проверенного водоисточника или из пойлушки, помещаемой в
выгуле собаки. Воду в пойлушке заменяют при каждом кормлении собаки.
Медикаменты для оказания срочной
ветеринарной и акушерской помощи находятся в родильном помещении питомника.
Для сохранения здоровья собак
соблюдают режим их содержания, своевременно оказывают больным животным лечебную
помощь, а также выполняют такие меры профилактики болезней как:
ежедневный осмотр перед чисткой;
ежемесячный осмотр на
ветеринарном пункте;
ежегодная вакцинация от чумы,
лептоспироза, "вольерного кашля";
соответствующая вакцинация в
определенном возрасте, сезоне и так далее;
личная гигиена обслуживающего
персонала;
не допускается вход посторонних
лиц и животных на территорию питомника;
К ежедневным работам по
обслуживанию собак относятся: осмотр собак для определения состояния их
здоровья и оказания ветеринарной помощи, выгуливание, чистка (если состояние
собак не препятствует ей), уборка вольеров и выгулов, кормление, прогулка,
смена воды и чистка специального инвентаря.
При отсутствии внешних признаков
заболевания и нормальном поведении собаки разрешается вывести ее из вольера для
выгуливания. Ежедневные движения крайне необходимы для здоровья собаки: они
укрепляют мышцы, улучшают деятельность сердца и легких, способствует хорошему
поеданию и усвоению корма.
Выгуливание проводят на
удлиненном поводке на специально отведенной площадке, а потом в течение 10-15
минут, собакам предоставляют возможность свободно побегать.
Прогулку проводят в те дни,
когда нет занятий с собаками, обычно в выходные. Продолжительность прогулки
должна быть не менее получаса. Прогулку собак производят на удлиненных поводках
под наблюдением. Желательно одновременно проводить прогулку не более двух
разнополых (не проявляющих друг к другу агрессии) собак. Прогулка собак в
намордниках и вывод собак для прогулки на "строгих" ошейниках не
допускается.
Чистку проводят для удаления с
поверхности тела шерсти собак грязи, а также для массажа тела. Для чистки
собаку привязывают с собаковязи цепью накоротке. Перед чисткой собаку
осматривают, обращая внимание на состояние кожного покрова, наличие накожных
паразитов, признаки заболеваний, препятствующих чистке. После осмотра человек
становится рядом с собакой, берет ее за ошейник и проводит чистку. Сначала
шерсть собаки расчесывает гребнем, поставленным наклонно, по направлению от
головы к хвосту. Затем двухсторонними движениями щетки шерсть очищают от грязи,
перхоти и выпавших волос. Выпавшие волосы снимают со щетки гребнем. Последовательность
чистки: очищают голову, шею, туловище, хвост и конечности.
Голову осторожно очищают щеткой,
глаза и уши протирают ватой. Особая осторожность соблюдается при чистке собак
во время линьки. Линька - это смена волос и подшерстка, которая происходит у
собаки весной и осенью и продолжается от 3 до 6 недель. Не допускается удалять
при линьке старую шерсть выщипыванием. При чистке особое внимание обращают на
те места, которые собака сама не может очищать (затылок, уши и тому подобное).
После чистки шерсть собаки
приглаживают суконкой, место чистки подметают, шерсть и другие, удаленные при
чистке частицы убирают в специальные мешки, а в последующем сжигают.
Ежедневная уборка мест
содержания собак является обязательной. Перед уборкой собак выводят на
собаковязь. Уборка будки состоит в смене подстилки, очистке стен, пола и крыши.
Подстилку для собак применяют в холодное время года и заменяют не реже одного
раза в неделю. В случае продолжительной ненастной погоды подстилку меняют чаще.
В вольерах производят уборку
экскрементов, удаление пыли и грязи на сетке и стенах вольеров, чистку
специального инвентаря, уборку и подсушку настилов, подметание вольера. Стены
вольера очищают с помощью метлы и тряпки. Экскременты собирают совком и относят
в специально отведенное место, где сжигают или вывозят.
1. При обслуживании собак
необходимо иметь спецодежду (халат, комбинезон).
2. Запрещается позволять собаке
лизать лицо и руки, давать ей корм и питье из личной посуды, использовать для
ухода за собакой личные вещи (расческу, полотенце, мыло и тому подобное).
3. После окончания работы
необходимо снять специальную одежду, вычистить обувью, вымыть руки с мылом. Специальную
одежду следует содержать в чистоте, и после стирки проглаживают горячим утюгом.
4. При работе с собакой
запрещается принимать пищу, курить, пить.
Собаки по своему происхождению и
анатомо-физиологическим особенностям животные плотоядные. В процессе приручения
и одомашнивания человек приучил их к растительной пище наравне с мясной. Однако
кормление только одной растительной пищей будет неполноценным, так как белки,
находящиеся в растительных кормах, собаками усваиваются хуже, чем белки
находящиеся в кормах животного происхождения. Для полноценного кормления собак,
как и других животных, в их пище должны содержаться белки, углеводы, жиры,
минеральные соли и витамины.
Средняя суточная потребность
взрослой собаки на 1кг живого веса должна быть следующей: белков 4-5г,
углеводов 12-15г, жиров 2-3г. Рацион служебных собак должен быть и достаточно
калорийным. Расчет калорийности делается по живому весу. Чем крупнее собака,
тем больше требуется калорий на 1кг живого веса. Потребность у каждой собаки в
калориях изменяется в зависимости от выполняемой работы и температурных условий.
При умеренной работе в средних условиях требуется: для собак весом 10кг - 3150
килоджоулей, для собак весом 20кг - 6760 килоджоулей, 30кг - 6900 килоджоулей,
для собак весом 40кг - 8600 килоджоулей, для собак весом 50кг - 10250
килоджоулей, для собак весом 60кг - 11400 килоджоулей, для собак весом 70кг - 12600
килоджоулей.
При содержании собаки на
открытом воздухе зимой надо увеличить дачу жиров, а при большой физической
работе - углеводов и белков. В рационе щенков, молодняка, щенных и кормящих сук
особенно важны белки, минеральные соли и витамины, отсутствие или
недостаточность которых вызывает задержку в росте, отклонения от нормального
развития.
Рацион собаки должен быть
разнообразным. В нем не должно быть острых приправ и специй, отрицательно
влияющих на обоняние: чеснока, перца, горчицы, уксуса и тому подобное.
Основные корма для собак
следующие:
Мясо и мясные отходы
сельскохозяйственных и диких животных, а также рыба - важнейшая часть рациона,
основной источник белковых веществ. Наиболее ценны они в свежем виде. В
засоленном виде эти продукты менее питательны, их следует тщательно вымачивать,
в свежем виде они скармливаются частично вареными, частично сырыми. Не следует
кормить собак свининой.
Молочные продукты: молоко,
творог, обрат, пахта - очень ценный питательный корм, в особенности для щенков,
щенных и кормящих сук.
Крупяные и мучные продукты - основной
источник углеводов. Скармливаются эти продукты в хорошо разваренном виде, в
особенности крупа. Важным кормом служит хлеб.
Корнеплоды, овощи, зелень. Картофель,
морковь, капуста, свекольная ботва, молодая крапива также входят в рацион собак.
Картофель скармливается вареным, овощи и зелень - частью вареными, частью
сырыми в мелко нарубленном виде. Собакам также важны минеральные подкормки: кости
(не трубчатые), мясокостная, костная, рыбокостная мука, молочный мел и так
далее.
Ценный и необходимый элемент
питания и рациона собак - богатые витаминами животные жиры, в том числе рыбий,
морского зверя, китовый. Жиры не должны быть прогорклыми.
Необходимо, чтобы в рацион
входили все элементы и виды питательных веществ.
В питомнике "Надёжная
Охрана" используется смешанный тип кормления, то есть кормление
производится сухими кормами компании "Diamond Pet Foods Int", которая
является одним из мировых лидеров производства полнорационных сухих и
консервированных кормов для домашних животных. Главным приоритетом в работе
данной компании владельцы считают сохранение высокого качества корма, вне
зависимости от объемов производства. Вся продукция, производимая в компании,
проходит все необходимые проверки качества и безопасности. Корма также
соответствуют всем нормам и правилам американской Ассоциации Государственного
контроля за продуктами питания (AAF CO). Взрослые собаки в питомнике
дополнительно к сухому корму также получают мясо и субпродукты: рубец, калтыки,
трахеи, печень. Собак кормят согласно таблице 2.
Таблица 2 - Режим
кормления собак
| Возраст |
Кормлений в сутки |
| 3 - 5 недель* |
4 |
| 5 недель |
6 |
| 4 - 6 месяцев** |
4 |
| 6 - 8 месяцев** |
3 |
| 8 - 12 месяцев** |
3 |
| Старше года |
2 |
Примечание: * - дополнительно к
материнскому молоку щенков подкармливают и другими молочными продуктами;
** - если щенки остаются в
питомнике.
Перевод на использование сухих
кормов для питания щенков должен проходить на фоне нормального физиологического
состояния и функционирования желудочно-кишечного тракта животного.
Период перевода на сухой корм
составляет 7 дней, в течение которых он должен осуществляться постепенно, путем
подмешивания нового корма к привычному рациону, снижая содержание ранее
используемого корма и увеличения количества сухого корма в смеси до
рекомендуемых величин, пока он не заменит старый полностью (таблица 3).
Количество сухого корма на
начало перевода не должно превышать 10% от объема рациона.
Таблица 3
- Соотношение сухого корма и корма из натуральных продуктов
| день |
Сухой корм, % |
Корм из натуральных продуктов, % |
| 1 |
10 |
90 |
| 2 |
20 |
80 |
| 3 |
30 |
70 |
| 4 |
45 |
55 |
| 5 |
60 |
40 |
| 6 |
80 |
20 |
| 7 |
100 |
0 |
Питомник закупает сухие корма
Diamond для определенных возрастных групп, при этом также учитываются их
физиологическое состояние:
Diamond Hi Energy Sporting for
Dogs 22,68кг - Даймонд Высокая энергия для спортивных собак - профессиональный
высокоэнергетический корм, разработанный специально для спортивных собак. Прекрасно
подходит для восстановления энергии животного в период наивысшей физической
нагрузки. Данная формула с повышенным количеством витаминов и минералов не
содержит избыточного количества протеина и клетчатки и способствует
эффективному обмену веществ.
Ингредиенты: мясная мука грубого
помола, пророщенная кукуруза, рисовые отруби, пшеничная мука, куриный жир (консервированный
смесью токоферолов), кукурузная клейковина, свекольный жом (без содержания
сахара), натуральные ароматизаторы, хлорид калия, хлорид натрия, хлорид холина,
добавка витамина Е, сульфат железа, сульфат цинка, сульфат меди, йодид калия,
тиамина мононитрат, оксид магния, аскорбиновая кислота, добавка витамина А,
биотин, кальция пантотенат, сульфат магния, селенит натрия, гидрохлорид
пиридоксина (витамин В6), добавка витамина В12, менадион диметилпиримидинол бисульфит
(активатор витамина К), рибофлавин, добавка витамина Д, фолиевая кислота. В
таблице 4 показана потребность собак на 1кг живой массы, а потребность в разные
физиологические периоды - в таблице 5.
Diamond Senior 8+ Formula for
Dogs 8,16 кг - Корм для пожилых собак старше 8 лет. - Этот корм поддерживает
здоровье суставов, печени, почек и сердца, что помогает собакам в золотые годы
чувствовать себя превосходно. Корм специально разработан для пожилых собак
старше 8 лет. Мясо цыпленка, яичный продукт и овсянка, содержат ключевые
компоненты необходимые поддержания хорошего здоровья пожилых собак. Эта формула
включает в себя Глюкозамины / Хондроитины, антиоксиданты, L-карнитин, минералы,
жирные Омега кислоты, чтобы помочь собакам быть здоровыми в золотые годы. Плюс
эта формула содержит свежее мясо для улучшения вкуса.
Ингредиенты: неочищенный рис,
свежее мясо цыпленка, куриная мука, яичный продукт, овсяная мука, свекольный
жом, куриный жир (консервированный смесью токоферолов), льняное семя,
натуральный куриный аромат, сухие пивные дрожжи, экстракт цикория, калия
хлорид, соль, глюкозамина гидрохлорид, витамин В1, витамин Е, хондроитина
сульфат, провитамин А, белковый комплекс содержащий цинк, медь и магний; железа,
цинка и меди сульфаты; калия йодид, магния оксид, витамин С, витамин А, L-карнитин, биотин, кальция пантотенат, сульфат магния,
селенит натрия, витамины В6, В12, К, Д, В2, фолиевая кислота.
Diamond Puppy Formula 18,14 кг -
Корм для щенков и беременных и кормящих самок - Правильный баланс жира, белка,
и других питательных веществ гарантируют, что ваш щенок получает надлежащие
питательные вещества, чтобы стать сильным и здоровым. Эта формула прекрасно
подходит беременным и кормящим собакам.
Ингредиенты: мука грубого помола
из куриных субпродуктов, кукурузная клейковина, рисовая мука, куриный жир (консервированный
смесью токоферолов), пшеничная мука, свекольный жом (не содержащий сахара),
рыбная мука, яичный продукт, натуральный ароматизатор, льняное семя, рыбная
мука, сухие пивные дрожжи, хлорид калия, хлорид натрия, хлорид холина, добавка
витамина Е, сульфат железа, сульфат цинка, сульфат меди, йодид калия, тиамина
мононитрат, оксид магния, аскорбиновая кислота, добавка витамина А, биотин,
кальция пантотенат, сульфат магния, селенит натрия, гидрохлорид пиридоксина (витамин
В6), добавка витамина В12, менадион диметилпиримидинол бисульфит (активатор
витамина К), рибофлавин, добавка витамина Д, фолиевая кислота.
Все щенки после рождения в
течение месяца находятся под сукой. Если у суки не хватает молока для их
вскармливания или щенков слишком много, то начинают подкармливать коровьим
молоком. Месячных щенков начинают постепенно отнимать от матери и подкармливать
творогом, куриными яйцами, небольшим количеством мясного фарша, цельным
молоком, смесью витаминов и минералов, морковью с растительным маслом. Кавказские
овчарки - довольно крупные собаки и поэтому у них могут возникнуть проблемы с
опорно-двигательным аппаратом. В связи с этим необходимо укреплять суставы и
кости. Для этого в питомнике применяют такой препарат как глюкогекстран.
|